Proclamation under the Roads and Jetties Act 1935
I, the Governor in and over the State of Tasmania and its Dependencies in the Commonwealth of Australia, acting with the advice of the Executive Council, by this my proclamation made under section 52A of the Roads and Jetties Act 1935
9 September 2024(a) declare the portions of the West Tamar Highway specified in Schedule 1 to this proclamation to be a limited access road; and(b) declare the places set forth in Schedule 2 to this proclamation to be places of access for the purposes of section 52B of the Roads and Jetties Act 1935 ; and(c) revoke the proclamation notified in the Gazette as Statutory Rules 1977, No. 54; and(d) declare that this proclamation takes effect on the day on which its making is notified in the Gazette.
B. BAKER
Governor
By Her Excellency's Command,
JEREMY ROCKLIFF
Minister for Infrastructure
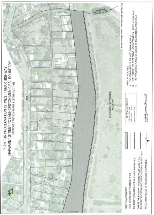
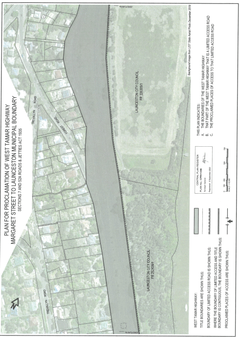
SCHEDULE 1 - West Tamar Highway Limited Access Road
Description | Length in kilometres | 1. That part of the West Tamar Highway from | (a) southbound carriageway a point 82 metres west of Margaret Street at Launceston, to the Launceston City boundary at Trevallyn, as shown on Plan 11396 in the Central Plan Register, a reduced copy of which is set out, by way of illustration only, in Schedule 3 to this proclamation; and | 2.08 | (b) northbound carriageway the western boundary of Babington Street at Launceston, to the southern boundary of 1 West Tamar Road Trevallyn, as shown on Plan 11396 in the Central Plan Register, a reduced copy of which is set out, by way of illustration only, in Schedule 3 to this proclamation | 0.71 | 2. That part of the West Tamar Highway between Muddy Creek and the southern boundary of Killara Avenue at Lanena | 8.69 |
SCHEDULE 2 - West Tamar Highway Places of Access
PART 1 - Places of Access North of Western Boundary of Babington Street
Description | Distance in kilometres north of the western boundary of Babington Street | 1. Slip lane to Brisbane Street north-east side | 0.12 |
PART 2 - Places of Access South of Launceston City Boundary at Trevallyn
Description | Distance in kilometres south of the Launceston City Council boundary at Trevallyn | 1. Access road east side | 1.25 | 2. Slip lane to Brisbane Street south-east side | 2.07 |
PART 3 - Places of Access north of Muddy Creek
Description | Distance in kilometres north of Muddy Creek | 1. Atkinsons Road west side | 0.03 | 2. Rosevears Drive (south) east side | 0.23 | 3. McEwans Road east side | 0.97 | 4. Upper McEwans Road west side | 0.97 | 5. Craythorne Road north side | 3.62 | 6. Waldhorn Drive south side | 3.67 | 7. Access road to Bradys lookout north side | 5.69 | 8. Slip lane to Access road to Bradys lookout north side | 5.70 | 9. Masons Road south-west side | 6.27 | 10. Bradys Lookout Road east side | 6.53 | 11. Rosevears Drive (north) east side | 8.44 8.49 | 12. Lanena Crescent south-west side | 8.60 |
SCHEDULE 3 - Plan
Displayed and numbered in accordance with the Rules Publication Act 1953.
Notified in the Gazette on 18 September 2024
This proclamation is administered in the Department of State Growth.
.gif)
.gif)
.gif)
.gif)